El vecindario que rodea la mezquita Shaikh Hamad está siendo remodelado. Uno de los objetivos de esta remodelación es devolver a los edificios existentes su huella original, es por ello que los arquitectos de SeARCH han diseñado la biblioteca de Khalifeyah.
Descripción por el equipo del proyecto.
El proyecto tiene como objetivo fortalecer la revitalización en curso de este barrio ofreciendo un edificio de biblioteca pública. Este nuevo espacio cultural complementará las instalaciones comerciales existentes y estará abierto a todos los miembros de la sociedad.
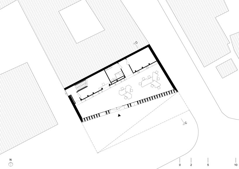
Situada en el centro histórico de Muharraq, la Biblioteca Khalifeyah fue una de las primeras bibliotecas públicas de Bahrein. El entorno de la biblioteca sufrió una remodelación en los años ochenta, que modificó considerablemente la silueta urbana de la zona y destruyó su escala original. SeARCH ha diseñado una biblioteca que se incrusta sutilmente en el barrio existente, pero al mismo tiempo tiene una fuerte presencia arquitectónica que le permite convertirse en un punto focal público del barrio. El límite de la planta baja está formado por la línea diagonal de la huella del edificio adyacente, mientras que el volumen en voladizo de las dos plantas superiores retoma la huella original de la biblioteca. De esta manera el espacio público se mantiene intacto y al mismo tiempo crea una entrada cubierta para la biblioteca.
La Biblioteca Khalifeyah alberga una sala de lectura, un centro de investigación, un laboratorio de Internet y espacios de oficinas, todos ellos abiertos al público. El programa cultural y público se centrará en los jóvenes que viven en el corazón de Muharaq.
Arquitectos: SeARCH
Ubicación: Muharraq, Bahrein
Arquitecto líder: Bjarne MASTENBROEK
Área: 600.0 m2
Año Proyecto: 2016
Fotografías: Iwan Baan

